






calle de los chulapos, Madrid, Comunidad de Madrid, España
Piso a ESTRENAR Y completamente amueblado y equipado en el corazón de Madrid:
¡Descubre este encantador piso con pequeño jardín utilizable justo delante, completamente reformado y listo para estrenar!
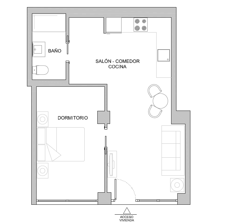
Con una superficie de 45 m² útiles, cuenta con una gran habitación acogedora con dos grandes ventanales a la calle con persiana eléctrica, un moderno salón-cocina con otro gran ventanal y un baño completo. Decorado con cariño y atención al detalle, este espacio ofrece un ambiente cálido y confortable que te hará sentir como en casa desde el primer momento.
Ubicado a escasos metros de Madrid Río, disfrutarás de vistas tranquilas a un jardín privado, ideal para relajarte sin el paso constante de personas al ser una zona muy residencial y tranquila. Además, el inmueble se encuentra dentro de un recinto privado que garantiza seguridad y privacidad. La orientación sur permite que la luz natural inunde cada rincón, creando un ambiente luminoso y agradable, sin perder privacidad gracias a sus cortinas translúcidas.
El piso está completamente amueblado a estrenar y equipado con splits de frío y calor nuevos, asegurando un mínimo consumo energético. También cuenta con armarios empotrados para maximizar el espacio de almacenamiento. El garaje está disponible por solo 50 € adicionales, lo que facilita el estacionamiento tanto para moto como para coche.
La ubicación es inmejorable: a tan solo 15 minutos a pie de la estación de metro Puerta de Toledo (línea 5) y cercanías Pirámides. Este piso es perfecto para quienes buscan comodidad y estilo en una de las zonas más vibrantes de Madrid. ¡No pierdas la oportunidad de vivir en este maravilloso hogar! Disponible a partir de YA por solo 1200 €/mes.
¡Contáctanos para más información y ven a verlo!